Référence : VAP10000199
Calculette
Partager
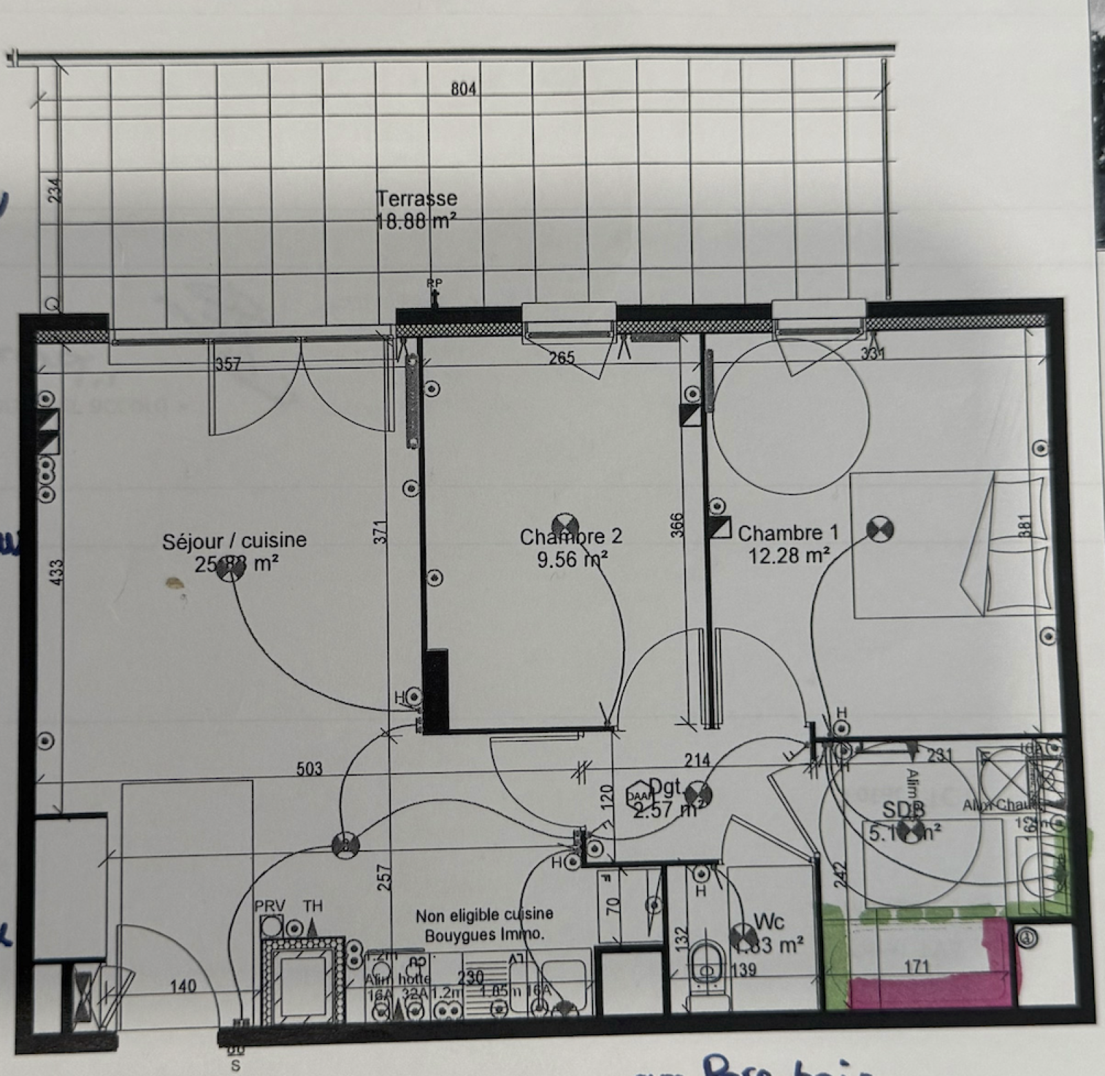
Récent T3 de 57 m² avec grande terrasse de 19 m² et garage
Description de l'offre
L’agence Espaces et Lieux a le plaisir de vous présenter ce très bel et récent appartement de plus de 57 m² avec sa grande terrasse de 19 m² situé, côté et vue sur jardin, dans une résidence sécurisée de 2023. Idéalement placé à proximité des commerces, écoles et toutes commodités, ce bien offre un cadre de vie confortable, moderne et fonctionnel, parfait pour une résidence principale ou un investissement. L'appartement se compose d’une cuisine aménagée ouverte sur un spacieux et lumineux salon de 26 m², de deux grandes chambres (10 m² et 12 m²), d’une grande salle de bains et d’une terrasse orientée Ouest de 19 m² sans vis-à-vis. Un garage complète ce bien. L'appartement bénéficie d'un jardin partagé ainsi que des garanties décennales. Les informations sur les risques auxquels ce bien est exposé sont disponibles sur le site Géorisques : www.georisques.gouv.fr
Descriptif du bien
- Code postal : 69700
- Surface habitable (m²) : 57,23 m²
- Surface loi Carrez (m²) : 57,23 m²
- Nombre de chambre(s) : 2
- Nombre de pièces : 3
- Etage : 1
- Ascenseur : OUI
- Vue : Dégagée
- Nb de salle de bains : 1
- Cuisine : AMERICAINE
- Type de cuisine : EQUIPEE
- Mode de chauffage : Gaz
- Type de chauffage : TRAD_TYPE_CHAUFF_CHAUDIERE
- Format de chauffage : Individuel
- Interphone : OUI
- Visiophone : OUI
- Terrasse : OUI
- Nombre de garage : 1
- Cave : NON
- Exposition : OUEST
- Année de construction : 2023
- Copropriété : OUI
- Lot n° : 10
- nombre de lots : 91
- plan de sauvegarde : NON
- statut du syndic : pas de procédure en cours
- Prix de vente honoraires TTC inclus : 175 000 €
- Taxe d'habitation : 1 058 €
Montant estimé des dépenses annuelles d'énergie pour un usage standard est compris entre 510 € et 730 € . Prix moyens des énergies indexés sur les années 2021, 2022 et 2023 (abonnements compris).
La ville de Givors (69700)
Nous contacter
Afficher le téléphone 04 51 24 81 24Les informations recueillies sur ce formulaire sont enregistrées dans un fichier informatisé par La Boite Immo agissant comme Sous-traitant du traitement pour la gestion de la clientèle/prospects de l'Agence / du Réseau qui reste Responsable du Traitement de vos Données personnelles.
La base légale du traitement repose sur l'intérêt légitime de l'Agence / du Réseau.
Elles sont conservées jusqu'à demande de suppression et sont destinées à l'Agence / au Réseau.
Conformément à la loi « informatique et libertés », vous disposez des droits d’accès, de rectification, d’effacement, d’opposition, de limitation et de portabilité de vos données. Vous pouvez retirer votre consentement à tout moment en contactant directement l’Agence / Le Réseau.
Consultez le site https://cnil.fr/fr pour plus d’informations sur vos droits.
Si vous estimez, après avoir contacté l'Agence / le Réseau, que vos droits « Informatique et Libertés » ne sont pas respectés, vous pouvez adresser une réclamation à la CNIL.
Nous vous informons de l’existence de la liste d'opposition au démarchage téléphonique « Bloctel », sur laquelle vous pouvez vous inscrire ici : https://www.bloctel.gouv.fr
Dans le cadre de la protection des Données personnelles, nous vous invitons à ne pas inscrire de Données sensibles dans le champ de saisie libre.
Ce site est protégé par reCAPTCHA, les Politiques de Confidentialité et les Conditions d'Utilisation de Google s'appliquent.
